加古川の注文住宅・間取り相談は「幸木之家」コンセプト|美しい家と共に生きる|幸木之家|こうぼくのいえ

前川建設株式会社前川建設株式会社
中規模木造建築

これからのオフィスのカタチ中規模
木造建築 これからのオフィスのカタチ

Designing the Modern Office with the Warmth of Wood.
Where functionality meets timeless beauty.

Scroll

  • 中規模木造建築スライダー画像1
  • 中規模木造建築スライダー画像2
  • 中規模木造建築スライダー画像3
  • 中規模木造建築スライダー画像4
  • 中規模木造建築スライダー画像5
  • 中規模木造建築スライダー画像6
  • 中規模木造建築スライダー画像7
  • 中規模木造建築スライダー画像8
森と人が循環する、未来のオフィス

森と人が循環する、
未来のオフィス
中規模木造建築で
企業の価値を高めます

兵庫の森で育ったスギとヒノキが、
新しい働く空間をカタチにしました。
太陽や雨の恵みを活かすZEB設計
(ネット・ゼロ・エネルギー・ビル)と、
地域材を用いたCLT構造が融合した
「自然循環型オフィス」。
建てる人、使う人、そして地域の林業まで、
すべてがつながり循環する建築です。
前川建設が提案したこのオフィスは、
脱炭素社会を象徴する
“次世代のモデル”として、木の可能性を
力強く示しています。

設計×施工で実現する、
中規模木造建築の
新たな価値

サステナブル経営を
体現するオフィス。

令和7年度「木材利用推進コンクール
(優良施設部門)」で環境大臣賞を受賞した前川建設。公共・民間を問わず、地域に誇れる木造建築を数多く手がけてきた実績が、その設計力の証です。企業にとって、こうした木造建築でオフィスや施設を建てることは、社会への姿勢を示すシンボルとなり、サステナブル経営を体現する広告塔にもなります。

サステナブル経営を体現するオフィス

ゼネコンのノウハウを
オフィスづくりに。

前川建設の母体は、建築・土木・インフラを総合的に担うゼネコン。その確かな施工管理力と技術基盤を背景に、構造計算や耐火・防耐久の高度なノウハウを要する中規模木造建築にも対応します。鉄骨やRCの領域で培った品質・安全・コスト管理のノウハウを木造に応用し、環境配慮と性能を両立する空間づくりを実現します。

施工管理力と技術基盤を活かした中規模木造建築

木材利用推進コンクールとは?

国(林野庁)主導で木造建築の普及と質の向上を目的に実施される、権威ある全国表彰制度です。優れた設計力・技術力を持つ木造建築や地域木材の先進的な活用事例を選出し、環境貢献や持続可能なまちづくりに寄与する模範的プロジェクトを顕彰します。

木材利用推進コンクール表彰状

令和7年度木材利用推進コンクール
【優良施設部門】環境大臣賞 受賞

設計者前川 桂恵三

中規模木造建築施工事例写真1
中規模木造建築施工事例写真2
中規模木造建築施工事例写真3
中規模木造建築施工事例写真4
中規模木造建築施工事例写真5
中規模木造建築施工事例写真6
中規模木造建築施工事例写真7
中規模木造建築施工事例写真8
中規模木造建築施工事例サムネイル1
中規模木造建築施工事例サムネイル2
中規模木造建築施工事例サムネイル3
中規模木造建築施工事例サムネイル4
中規模木造建築施工事例サムネイル5
中規模木造建築施工事例サムネイル6
中規模木造建築施工事例サムネイル7
中規模木造建築施工事例サムネイル8

Architectural Points

建築のポイント

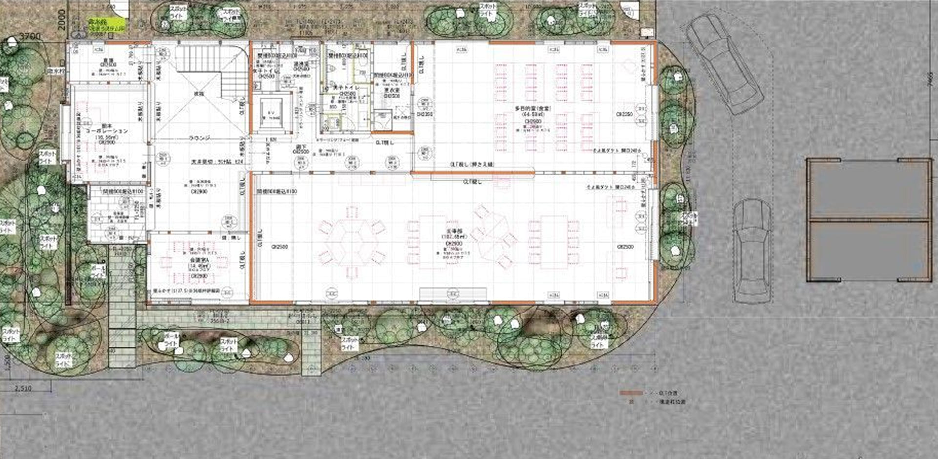
自然循環型CLT&ZEBオフィスビル
(兵庫県姫路市)

Point.01

地域材の循環が生む
“地産地建”のモデル。

県産スギ・ヒノキを100%使用し、製材からCLTパネル製造までを県内で完結。二等材などの低価格材にも新たな価値を与え、林業・製材業・建設業が連携して資源の循環と地域経済を支えています。こうした体制は、他の地域にも展開可能な“地産地建”の実践モデルです。

サステナブル経営を体現するオフィス
Point.02

木で造り、エネルギーを創る。
完全ZEBの木造オフィス。

木の断熱性能と高気密設計によりC値0.31を実現。太陽光・太陽熱・雨水を活用し、運用時CO₂排出ゼロの完全なゼロエネルギービル(ZEB)を達成しました。炭素貯蔵量は約56トン。CO₂削減と再生可能エネルギー利用を両立し、建築から環境への負荷を最小限にしています。

施工管理力と技術基盤を活かした中規模木造建築
Point.03

木に触れ、学び、働く──。
環境教育の舞台へ。

エントランスから社長室まで、現しの木質空間が続き、光と風、緑が一体となる“森のようなオフィス”。完成後は学生や地域住民への見学を通じ、木材利用や脱炭素の価値を伝える学びの場としても活用。働く人が木のぬくもりに包まれながら、森の未来を考える場所になっています。

環境配慮と性能を両立する空間づくり
Profile
前川桂恵三チーフオフィサー

チーフオフィサー前川 桂恵三

前川建設(株)住宅事業責任者。一級建築士、趣味は茶道。早稲田大学卒業後、大林組、松下政経塾を経て、前川建設に入社。入社後、住宅事業部を立ち上げ、「暮らしと心を快適に」を理念に、LIXILリフォームショップ ライファ加古川、ライファ神戸西神の2店舗を経営。新築事業では、自社ブランド「幸木之家」を立ち上げ、「幸せな木の家づくり」をモットーに注文住宅の設計施工を行う。2019年より伊礼智氏主宰のi-worksに加盟し、2023年 i-works5.0モデルハウスをオープン。

受賞実績
  • 木材利用推進コンクール 環境大臣賞
  • LIXIL メンバーズ コンテスト リフォーム部門 グランプリ
  • LIXIL メンバーズ コンテスト 地域最優秀賞
  • グッドデザイン賞
  • 日本エコハウス大賞 奨励賞
  • NEXT木造オフィス賞
この施工例を詳しく見る

Other Awardsその他の受賞歴

2025

「ひとところのいえ」

日本エコハウス大賞奨励賞ロゴ

日本エコハウス大賞 奨励賞

2024

「里山に包まれる夢前の家」

LIXILメンバーズコンテスト地域最優秀賞ロゴ

LIXIL メンバーズコンテスト2024
新築部門
地域最優秀賞

2023

「丹波篠山北窓の家」

LIXILメンバーズコンテスト地域最優秀賞ロゴ

LIXIL メンバーズコンテスト2023
新築部門
地域最優秀賞

「モデルハウス ENNE(エン) 」

グッドデザイン賞ロゴ

2023年
グッドデザイン賞

2022

「淡路久留麻の集まる家」

日本エコハウス大賞奨励賞ロゴ

2022年 第6回
日本エコハウス大賞 奨励賞

LIXILメンバーズコンテスト地域最優秀賞ロゴ

LIXIL メンバーズコンテスト2022
新築部門
地域最優秀賞

「モデルハウス ENNE(エン) 」

LIXILメンバーズコンテスト地域最優秀賞ロゴ

LIXIL メンバーズコンテスト2022
新築部門
地域最優秀賞

トップへ戻る